Property Type
Other
Parking
Garage: No, 6 parking
MLS #
40717085
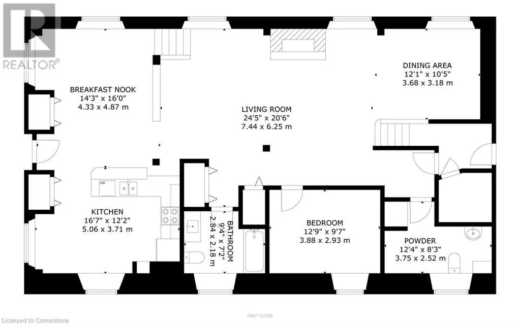
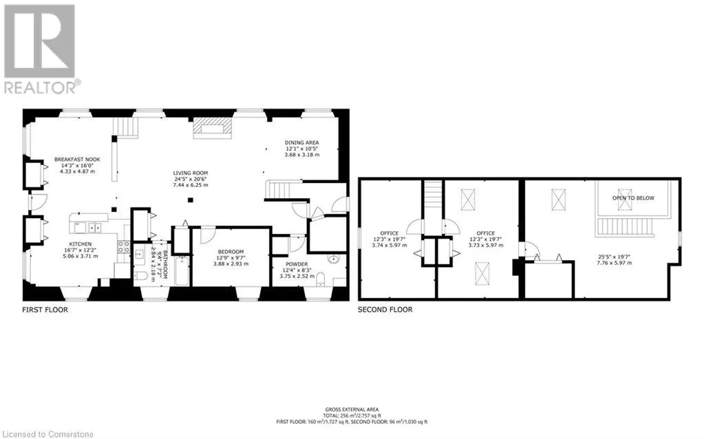
Size
2757 sqft
Basement
None
Listed on
-
Lot size
-
Tax
-
Days on Market
-
Year Built
1870
Maintenance Fee
-